FFGR

ΛΙΜΑΝΙ
Στην Α’ προβλήτα στο Λιμάνι Θεσσαλονίκης, έναν ζωντανό χώρο πολιτιστικής δραστηριότητας και πόλο έλξης ντόπιων και ξένων επισκεπτών, βρίσκονται το Μουσείο Κινηματογράφου και η Αποθήκη Γ.
Μαζί με τις άλλες Αποθήκες της A’ προβλήτας συναποτελούν, ειδικά μετά την ανάπλαση της περιοχής, τοπόσημο για την πολιτισμική έξοδο της Θεσσαλονίκης, δημιουργώντας τις καλύτερες προϋποθέσεις για τη φιλοξενία δράσεων: δίπλα στο κύμα, απέναντι από τα Λαδάδικα του διασωθέντος Ιστορικού Κέντρου, λίγα βήματα από το εμπορικό κέντρο της πόλης.

ΑΠΟΘΗΚΗ Γ
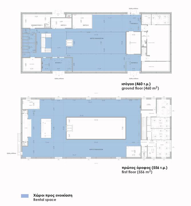
ΧΩΡΗΤΙΚΟΤΗΤΑ
ισόγειο: 287 άτομα
πρώτος όροφος: 397 άτομα
Η Αποθήκη Γ΄, χτισμένη στις αρχές του 20ού αιώνα, είναι ένα διώροφο κτίριο. Αποτελεί μέρος του ιστορικού τόπου του Δήμου Θεσσαλονίκης, στοιχείο που το καθιστά ιδανικό χώρο για πολιτιστικές εκδηλώσεις. Βρίσκεται στην προβλήτα A΄ , στο Λιμάνι Θεσσαλονίκης. Είναι το κέντρο της δραστηριότητας στη διάρκεια του Φεστιβάλ Κινηματογράφου Θεσσαλονίκης και του Φεστιβάλ Ντοκιμαντέρ Θεσσαλονίκης. Στην Αποθήκη Γ΄ πραγματοποιούνται εταιρικές εκδηλώσεις, δεξιώσεις, πάρτι και συναυλίες.
ΠΑΡΟΧΕΣ
- Ίντερνετ WIFI
- Πρόσβαση σε άτομα με κινητικές δυσκολίες








ΑΙΘΟΥΣΑ ΤΑΚΗΣ ΚΑΝΕΛΛΟΠΟΥΛΟΣ - ΜΟΥΣΕΙΟ ΚΙΝΗΜΑΤΟΓΡΑΦΟΥ
ΧΩΡΗΤΙΚΟΤΗΤΑ
49 θέσεις (δυνατότητα προσθήκης έως
10 επιπλέον καθισμάτων)
Το Μουσείο Κινηματογράφου στεγάζεται στην Αποθήκη Α΄, στην ίδια προβλήτα με την Αποθήκη Γ΄, έναν ζωντανό χώρο πολιτιστικής δραστηριότητας και πόλο έλξης ντόπιων και ξένων επισκεπτών. Στεγάζει μια μικρή κινηματογραφική αίθουσα και κινηματογραφική βιβλιοθήκη.
ΤΕΧΝΙΚΕΣ ΔΥΝΑΤΟΤΗΤΕΣ
- Μικροφωνική εγκατάσταση συνεδριακού τύπου, με ενσύρματα και ασύρματα μικρόφωνα υψηλής ποιότητας
- Αναπαραγωγή ταινιών και ψηφιακών αρχείων και σύνδεση με H/Y
- Πρόσβαση σε άτομα με κινητικές δυσκολίες
ΕΞΟΠΛΙΣΜΟΣ ΠΡΟΒΟΛΗΣ
- Ψηφιακός προβολέας







